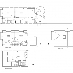
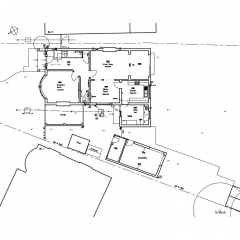
Measured Building Surveys
I offer a comprehensive measured building survey service.
We use the latest digital and laser measurement equipment to gain accurate and reliable information on site, enabling me to provide accurate, detailed plans, sections and elevations, which will be provided in a CAD format to suit your requirements.
Measured Building Surveys for London, Kent and Surrey. Other areas always considered. Please contact for further details.



