Draughting Services
I offer a professional draughting service and utilise the latest CAD and architectural design software, ensuring that each project undertaken is completed to the highest standards of quality and accuracy, and over the years I have been involved in a range of draughting projects.
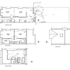
Whether you already have plans in an electronic format but wish them to be altered, own a set of hand-drawn plans and need them converted to a CAD format, or require as built plans prepared for a completed construction or renovation project, I can help.
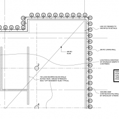
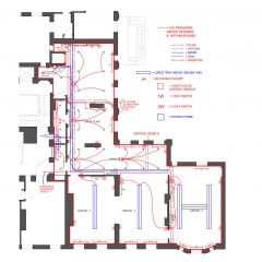
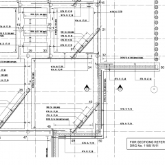
Other services I provide are the preparation of electrical layouts, detailed structural plans and floor plans for marketing purposes.
I can also prepare 3D CAD models of your property/project that may be used for marketing purposes, for illustrative means as part of a planning proposal, or even for movie production.

