Lease Plans
Land Registry compliant Lease Plans in Sutton, Croydon, Carshalton, Wallington, Morden, Mitcham, Banstead and Epsom and across Surrey, Kent and London with prices starting at £125.
In 2003 new legislation came into effect meaning that all new leases granted for a term of more than 7 years, or existing leases sold or assigned with 7 years left to run, must be registered with Land Registry. As part of the application a lease plan must be submitted and must meet Land Registry requirements.
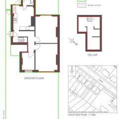
Typical examples of my Land Registry compliant Lease Plans are pictured below. It is a requirement that all Lease Plans must include an accurate and detailed floor plan of the subject property and its environs, including access and any common parts shared with other properties. An Ordnance Survey extract must also be included in order to show the property's location.



